$427.09

Custom 2 Drawers Floor Vanity Finger Pull

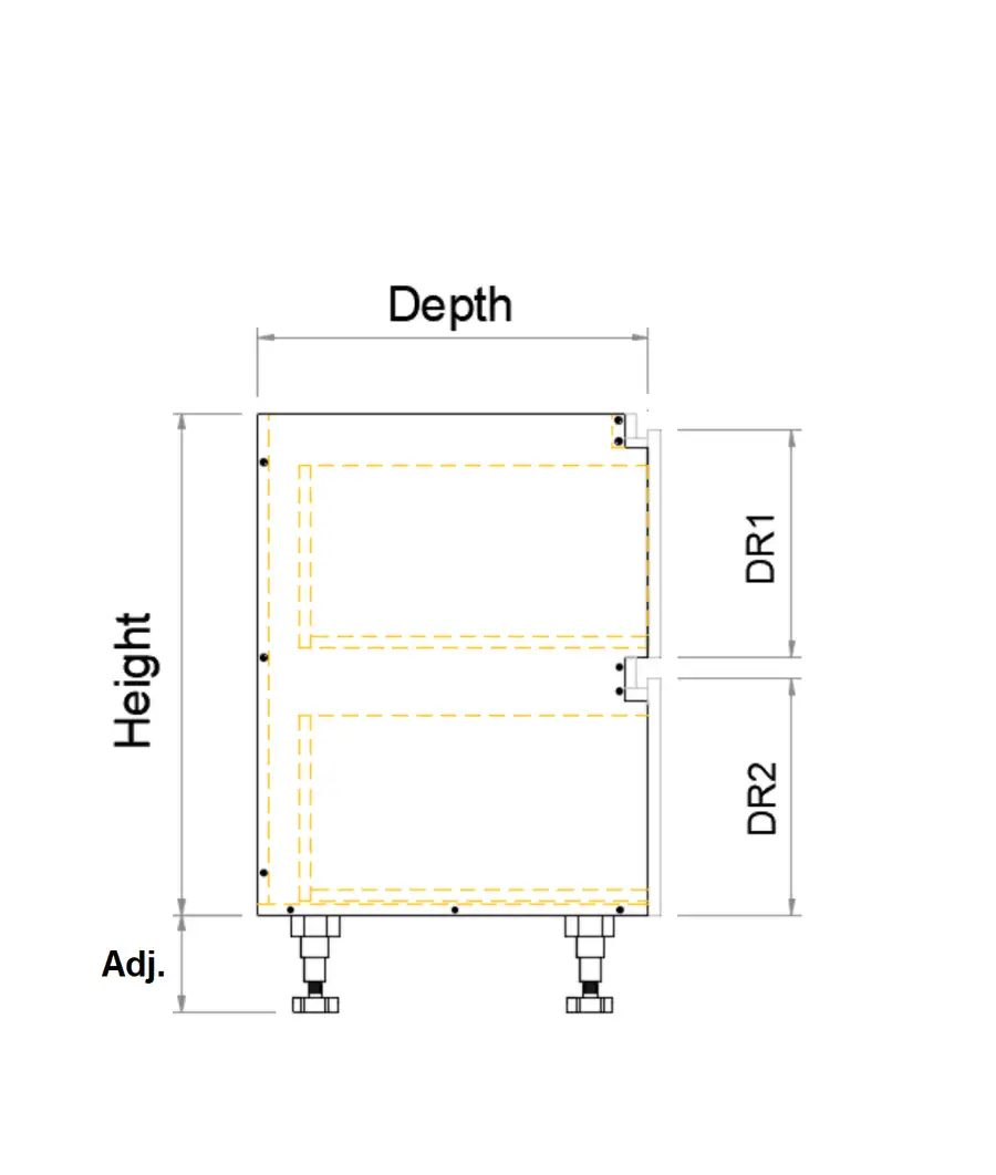
If you change the height of this cabinet, you must consider adjusting the drawers' height accordingly and vice versa. This is one of the most com...

$427.09Incl. GST

300
600
900
450
690
800
330
450
600
150
345
400
150
345
400
White-Melamine-Particle

Selected: White Melamine Particleboard / Stipple

Polar-White

Selected: Polar White / Matt

  • - Always check the measurement guidance by clicking on the Help (?) icons next to each input field.
  • - When using adjustable legs, ensure you also order a kicker (plinth) panel to cover the front view of the legs.
  • - If you have any exposed side views, we recommend ordering a side panel cut to the total height of the carcass + legs, to neatly cover the visible area.
Depot Addresses

Click to find closest Depot to you

Nationwide Delivery

Flatpack Shipping Estimator

Product Description:

Embrace contemporary bathroom design with this handleless two-drawer floor vanity. The integrated finger pull groove replaces traditional handles, creating uninterrupted clean lines that define modern bathroom design. No protruding hardware means nothing to knock against in compact bathroom spaces.

This premium Custom Flatpack vanity cabinet is proudly Flatpack manufactured in our Melbourne factory using high-quality Australian-made materials. Featuring two full-width drawers with concealed full-extension runners, this floor-standing vanity provides stylish, practical storage for toiletries and bathroom essentials.

Floor-standing design provides stable support with adjustable legs for perfect levelling on uneven bathroom floors. Two drawers provide practical separation for toiletries, cosmetics, hair tools, and bathroom essentials with full-extension access to complete drawer contents. The moisture-resistant construction handles the demanding humidity of daily bathroom use.

Specifications and Features:

- Configuration. Two full-width drawers with concealed full-extension runners in floor-standing construction.

- Mounting. Adjustable legs provide stable support with height adjustment for uneven floors.

- Design. Integrated finger pull groove machined into drawer/door top edge for handleless operation.

- Aesthetic. Clean, uninterrupted surfaces without protruding hardware.

- Practical. No handles to knock against in tight bathroom spaces or accumulate moisture.

- Materials. Australian-made moisture-resistant particleboard specifically rated for bathroom environments.

- Basin Compatibility. Top panel can be configured for basin installation to your specifications.

- DIY Friendly. See our Pre-drilled and labelled components for confident assembly DIY tips for best results.

Important Notes:

- Ensure plumbing location is planned before ordering to position correctly.

- Level the vanity carefully using adjustable legs before connecting plumbing.

- Moisture-resistant construction suits bathroom environments; avoid prolonged direct water contact.

- Verify overall dimensions suit your bathroom space before ordering.

FAQ:

What Are The Size Options For This Product?

This product is fully customisable through our online configurator. You can set the width from 300mm to 900mm, height from 450mm to 800mm, and depth from 34-380mm to 600mm. Each drawer front height is adjustable from 150mm to 400mm. All dimensions can be adjusted in 1mm increments for a precise fit in your space.

What Materials Are Available?

Select separate materials for carcass and drawer faces. For carcass, choose between White Melamine Chipboard or Colour Melamine Chipboard. For drawer faces, options include White Melamine Chipboard, Budget Melamine, Premium Melamine, Polytec Colour range, or 2PAC Range for a painted finish. Use the dropdown menus above and click Select Colour to browse finishes and preview your selection.